Hyères (83400) Viager occupé - T2 parking - HYERES CENTRE

Réf : 29850 52 000 €

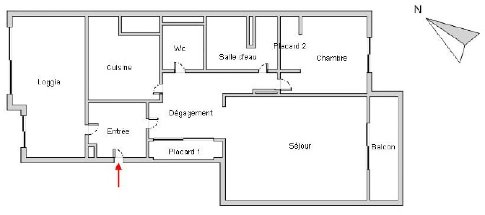
VIAGER OCCUPE - A Hyères, quartier Centre, à 2 pas de toutes les commodités, dans une copropriété de 28 lots d'habitation construite en 1976, au 4ème et dernier étage avec ascenseur, un appartement T2 de 47,64 m² (Carrez) et 59,29 m² au sol comprenant hall d’entrée, salon, cuisine aménagée, 1 chambre, salle d’eau, wc indépendants, rangements. Le tout en très bon état. Terrasse au Nord de 6,75 m², terrasse au sud de 11,43 m². Place de parking aérien inclus.

Une aubaine, vous investissez dans une copropriété qui n'aura plus de frais importants du fait que d'Importants travaux ont été votés par la copropriété (1,2 M€) : ravalement de façades, rénovation toiture, étanchéité terrasses, ferronerie, VMC,… qui restent à la charge du vendeur (quote part 33.607 €) ! Ces travaux sont en cours.

Vendu en viager occupé sur 1 tête femme de 76 ans. Valeur vénale : 200.000 €. Bouquet : 52.000 € et rente : 400 €/mois. Espérance de vie statistique : 15,68 ans. Une superbe opportunité avec une décote de 40%. Concernant les charges courantes de copropriété : 579 € sur les 919 € annuels (2024) restent à la charge du vendeur (rapport bailleur / locataire).


Les informations sur les risques auxquels ce bien est exposé sont disponibles sur le site Géorisques
TRAD_SIROCCO_Caracteristique Valeurs
Code postal 83400
Surface habitable (m²) 59,29 m²
Surface loi Carrez (m²) 47,64 m²
Nombre de chambre(s) 1
Nombre de pièces 2
Etage 4
Nombre de niveaux 1
Vue Dégagée - Dernier étage
TRAD_SIROCCO_Caracteristique Valeurs
Nb de salle d'eau 1
Cuisine Séparée
Type de cuisine Equipée
Mode de chauffage Climatisation
Type de chauffage Air pulsé
Format de chauffage Individuel
Interphone OUI
Terrasse OUI
Exposition Nord-Sud
TRAD_SIROCCO_Caracteristique Valeurs
Copropriété OUI
Lot n° 47
nombre de lots 28
Quote Part annuelle des charges 919 €
plan de sauvegarde NON
statut du syndic pas de procédure en cours
TRAD_SIROCCO_Caracteristique Valeurs
Prix de vente 52 000 €
Les honoraires d'agence seront intégralement à la charge du vendeur  
Charges 86 €
Taxe foncière annuelle 944 €
Rente mensuelle 400 €
TRAD_DETAIL_infosfi_DEFAULT_valeur_venale 200 000 €
Prix bouquet 52 000 €
DPE GES

Montant estimé des dépenses annuelles d'énergie pour un usage standard est compris entre 800 € et 1 110 € . Prix moyens des énergies indexés sur les années 2021, 2022 et 2023 (abonnements compris).

  • Commerces et santé
  • Loisirs
  • Ecoles
  • Transports
  • Pratique

Nos outils

Imprimer
Intéressé(e) par Ce bien ?

* Champ obligatoire

contacter l'agence

Les informations recueillies sur ce formulaire sont enregistrées dans un fichier informatisé par La Boite Immo agissant comme Sous-traitant du traitement pour la gestion de la clientèle/prospects de l'Agence / du Réseau qui reste Responsable du Traitement de vos Données personnelles. La base légale du traitement repose sur l'intérêt légitime de l'Agence / du Réseau. Elles sont conservées jusqu'à demande de suppression et sont destinées à l'Agence / au Réseau. Conformément à la loi « informatique et libertés », vous disposez des droits d’accès, de rectification, d’effacement, d’opposition, de limitation et de portabilité de vos données. Vous pouvez retirer votre consentement à tout moment en contactant directement l’Agence / Le Réseau. Consultez le site https://cnil.fr/fr pour plus d’informations sur vos droits. Si vous estimez, après avoir contacté l'Agence / le Réseau, que vos droits « Informatique et Libertés » ne sont pas respectés, vous pouvez adresser une réclamation à la CNIL. Nous vous informons de l’existence de la liste d'opposition au démarchage téléphonique « Bloctel », sur laquelle vous pouvez vous inscrire ici : https://www.bloctel.gouv.fr Dans le cadre de la protection des Données personnelles, nous vous invitons à ne pas inscrire de Données sensibles dans le champ de saisie libre.
Ce site est protégé par reCAPTCHA, les Politiques de Confidentialité et les Conditions d'Utilisation de Google s'appliquent.

Ces biens peuvent aussi vous intéresser