Toulon (83100) Bureaux - 488 m² - Solliès-Pont

Réf : 30046 6 588 € / mois HC*

Disponibilité immédiate

Le bâtiment est situé sur le zone d’activité des Plantades à Solliès-Pont -

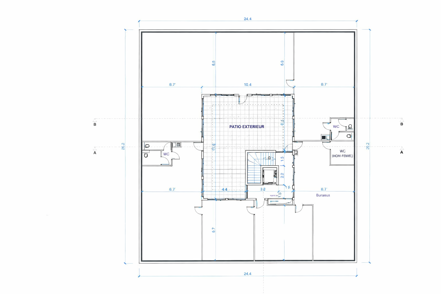
L’immeuble développe une surface d’environ 1.100 m² sur trois niveaux, rez-de-chaussée, premier et deuxième étage -

Les Bureaux se situe en R+2 d’une surface de 488 m² -

Le bâtiment est aux normes PMR, les étages sont desservis par une ascenseur -

36 emplacement de parking réservés aux occupants -

Bretelle d'accés à l'autoroute A50 à 100 m²

Bail professionnel -

Condiitons financières

Loyer mensuel : 6 588€ HT/HC -

Provision mensuelle de Charges communes: 191 € HT -

Provision pour taxes foncières 549 € HT par mois -

Dépôt de garantie : 2 mois de loyer HT/HC -

Honoraires de locations 15% HT du loyer annuel HT/HC -

Honoraires de rédaction de bail 800 € HT -

Pour tout complément d'information, contactez-nous !

TRAD_SIROCCO_Caracteristique Valeurs
Type de transac Bureaux
Code postal 83100
Surface habitable (m²) 488 m²
Nombre de niveaux 3
Ascenseur 1
Superficie (m²) 488
TRAD_SIROCCO_Caracteristique Valeurs
Mode de chauffage Climatisation
Type de chauffage Air pulsé
Format de chauffage Individuel
TRAD_SIROCCO_Caracteristique Valeurs
Copropriété NON
TRAD_SIROCCO_Caracteristique Valeurs
Loyer 6 588 € / mois
Honoraires charge locataire 11 809,80 €
Dont état des lieux Non renseigné
Dépot de garantie 13 176 €
Taxe foncière annuelle 6 588 €
TRAD_SIROCCO_Caracteristique Valeurs
type d'activité - Divers
DPE GES
DPE ANCIENNE VERSION
  • Commerces et santé
  • Loisirs
  • Ecoles
  • Transports
  • Pratique

* HC : Hors charges

Nos outils

Imprimer
Intéressé(e) par Ce bien ?

* Champ obligatoire

contacter l'agence

Les informations recueillies sur ce formulaire sont enregistrées dans un fichier informatisé par La Boite Immo agissant comme Sous-traitant du traitement pour la gestion de la clientèle/prospects de l'Agence / du Réseau qui reste Responsable du Traitement de vos Données personnelles. La base légale du traitement repose sur l'intérêt légitime de l'Agence / du Réseau. Elles sont conservées jusqu'à demande de suppression et sont destinées à l'Agence / au Réseau. Conformément à la loi « informatique et libertés », vous disposez des droits d’accès, de rectification, d’effacement, d’opposition, de limitation et de portabilité de vos données. Vous pouvez retirer votre consentement à tout moment en contactant directement l’Agence / Le Réseau. Consultez le site https://cnil.fr/fr pour plus d’informations sur vos droits. Si vous estimez, après avoir contacté l'Agence / le Réseau, que vos droits « Informatique et Libertés » ne sont pas respectés, vous pouvez adresser une réclamation à la CNIL. Nous vous informons de l’existence de la liste d'opposition au démarchage téléphonique « Bloctel », sur laquelle vous pouvez vous inscrire ici : https://www.bloctel.gouv.fr Dans le cadre de la protection des Données personnelles, nous vous invitons à ne pas inscrire de Données sensibles dans le champ de saisie libre.
Ce site est protégé par reCAPTCHA, les Politiques de Confidentialité et les Conditions d'Utilisation de Google s'appliquent.